VILA ESPERANÇA AGORA PERTENCE OFICIALMENTE A CUBATÃO
22/03/2018
Transferência da área onde fica o núcleo, do Governo Federal para a Prefeitura, foi realizada na manhã desta quinta-feira (22)
A Vila Esperança, núcleo mais populoso de Cubatão, com cerca de 30 mil moradores, deixou, nesta quinta-feira (22), de ser uma área sob domínio do Governo Federal e se integrou oficialmente à estrutura urbana de Cubatão. Em solenidade realizada no plenário da Câmara Municipal, a Secretaria do Patrimônio da União transferiu a titularidade da gleba, de 1,5 milhão de metros quadrados, para a Prefeitura.
O ato permitirá, no futuro, que os moradores possam obter a escritura definitiva dos imóveis que ocupam hoje apenas como posseiros, alguns há mais de três décadas.
"Agora sim, a Vila Esperança é nossa", saudou o prefeito Ademário Oliveira ao discursar durante o evento, que contou com a presença de Sidrack Correia Neto, secretário nacional do Patrimônio da União, e do superintendente paulista do órgão, Robson Tuma.
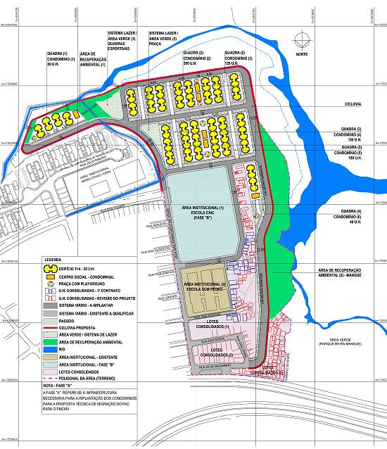
"Com a titularidade, poderemos avançar, agora, na urbanização efetiva do lugar", disse o prefeito, lembrando que os projetos com tal objetivo prevêem, em uma primeira etapa, a construção de 800 habitações.
Ademário destacou, também, a abertura de uma via perimetral, que permitirá nova alternativa de entrada e saída do núcleo - que conta, atualmente, com apenas uma avenida, a Principal, como acesso."A perimetral, além de complementar a estrutura viária, fixará os limtes definitivos da vila, impedindo seu crescimento desordenado". O prefeito informou que 70% dos recursos para a abertura desta via, orçada em R$ 40 milhões, já estão praticamente garantidos junto a órgãos financeiros federais.
Ademário afirmou que tem sido criticado em alguns setores da cidade por dar atenção excessiva àquele núcleo, sendo chamado, pejoraticamente, de "prefeito da Vila Esperança". Disse que essas críticas não o incomodam: "Não tem cabimento é deixarmos sem infraestrutura mínima, como os governos que me antecederam fizeram, um bairro com mais de 30 mil habitantes, praticamente uma cidade".
Por isso, segundo explicou, mesmo antes da transferência da titularidade da área, a administração já vinha investindo em obras de infraestrutura urbana naquele núcleo residencial, principamente na pavimentação de ruas.
O secretário nacional do Patrimônio da União, Sidrack Correia Neto, também discursou e emocionou o público ao fazer referência a José Severino da Silva, o Miúdo, líder comunitário da Vila Esperança, que por duas décadas lutou pela transferência da titularidade da área para a Prefeitura e não chegou a ver seu sonho realizado, pois morreu em 2016.
Robson Tuma, superintendente do Serviço do Patrimônio da União (SPU), por sua vez, informou que o próximo passo é transferir, para a Prefeitura, a titularidade da área onde se encontra o Jardim Nova República (Bolsão 8), onde residem seis mil pessoas.
Discursaram também na solenidade a secretária municipal da Habitação, Andrea Maria de Castro; o presidente da Câmara, vereador Rodrigo Alemão; e Cleiton Vinicius Santos, gerente geral da Caixa Econômica Federal na Baixada.
Vila Esperança - A área da Vila Esperança transferida para a Prefeitura tem 1.492.312,42 metros quadrados. Entre os projetos previstos para o núcleo consta a primeira fase do programa Minha Casa Minha Vida, que prevê a construção de 800 moradias.
O próximo passo, após a assinatura do contrato de cessão, será a obtenção da escritura, em nome da Prefeitura, no cartório de registro de imóveis, onde a área está cadastrada sob o número 63710100368-15. A solenidade da manhã desta quinta-feira contou com a presença de Maria Laura de Souza Coutinho, oficial do cartório de registro de imóveis de Cubatão.
A doação da SPU é específica para que a Prefeitura implante o projeto de urbanização integrada e reassentamento de moradias em áreas de risco e ambiental, sobre as quais se formou a Vila Esperança.
Do 1,5 milhão de metros quadrados, 675.500,81 m² se destinam à regularização fundiária e reassentamento de famíias que se encontram em áreas de risco; 126.131,93 m² à recuperação ambiental de áreas degradadas pela ocupação irregular e 690.679,68 m² à preservação de áreas de mangue.
Conforme a portaria, o uso do solo se dará da seguinte forma: 47.679,68 m² para áreas verdes de uso público, mais sistema de lazer e recreio; 126.131,93 m² para áreas verdes; 415.767,09 m² para habitação e comércio; 16.282,38 m² para ciclovias; 4.248,04 m² como faixa da ferrovia e 690.679,68 m² como área de preservação permanente.
O período de cessão é indeterminado, mas o prazo para que a Prefeitura conclua as obras é de quatro anos, contados a partir da assinatura do contrato de doação, que ocorrerá nesta quinta-feira. Esse prazo pode ser prorrogado por igual período, a critério do Governo Federal.
Texto: Paulo Mota - MTb 12.814

Cerimônia no plenário da Câmara Municipal marcou a transferência da área ao Município Foto: divulgação/Secretaria de Comunicação Social/Prefeitura de Cubatão

A secretária de Habitação, Andrea Maria de Castro, foi uma das oradoras na cerimônia
Foto: divulgação/Secretaria de Comunicação Social/Prefeitura de Cubatão

Autoridades assinam o documento de transferência
Foto: divulgação/Secretaria de Comunicação Social/Prefeitura de Cubatão

Autoridades assinam o documento de transferência
Foto: divulgação/Secretaria de Comunicação Social/Prefeitura de Cubatão

O prefeito Ademário Oliveira também assinou
Foto: divulgação/Secretaria de Comunicação Social/Prefeitura de Cubatão

O documento, assinado
Foto: divulgação/Secretaria de Comunicação Social/Prefeitura de Cubatão

Autoridades exibem o documento assinado
Foto: divulgação/Secretaria de Comunicação Social/Prefeitura de Cubatão

Prefeito Ademário Oliveira discursa ao final da solenidade
Foto: divulgação/Secretaria de Comunicação Social/Prefeitura de Cubatão
|