Clique aqui para voltar à página inicialhttp://www.novomilenio.inf.br/santos/fc117.htm
Última modificação em (mês/dia/ano/horário): 11/15/14 16:54:38
Clique na imagem para voltar à página principal
BICO-DE-PENA
Desenhos de Francisco Carballa [117]

O professor Francisco Carballa registrou no papel, com lápis e caneta esferográfica, imagens de uma cidade que aos poucos foi desaparecendo, com ênfase nos detalhes arquitetônicos, característicos de um encontro de culturas que se manifestou na primeira metade do século XX.

São edificações de uso comum, comerciais e residenciais, muitas delas demolidas, raramente preservadas, e que nesses detalhes captados pelo professor revelam aspectos curiosos de uma época já desaparecida. Quando existente, a linha do bonde é registrada nos desenhos, e uma marca registrada desses trabalhos costuma ser a existência de um vidro quebrado numa janela, sempre da mesma forma:


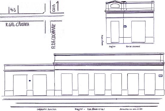
Rua General Câmara, 413, Paquetá- "Demolidos em maio de 2014. O número 413 funcionou como o último açougue da Rua General Câmara (ex-Rua dos Açougues), até os anos 1990, quando o dono se aposentou. Uma das portas servia aos fregueses; a outra, parcialmente emparedada, deixava exposto o maquinário do frigorífico. O prédio sofreu grande reforma que o descaracterizou, recebendo portas de ferro de correr em rolo. Toda a esquina era conhecida como Casa das Borboletas. Seu proprietário, sr. Benedito, de cor negra, santista antigo, a administrou até sua morte nos anos 1970, sendo em seguida vendida essa edificação. Ali os gringos ou embarcadiços encontravam artesanatos em pedrarias brasileiras, quadros e adornos com borboletas, estátuas em madeira, havendo uma que era um equilibrista contendo dois pesos e pelo movimento muito comum, mesas de madeira com marchetaria e asas de borboleta Mopho azul - inclusive, fomos presenteados com uma, quando fizemos viagem para a Espanha. Havia também lustres, cinzeiros, conchas, fósseis e tudo o que era comum naquele tempo. O prédio tinha piso alto para evitar as enchentes, mármore branco na soleira, piso hidráulico bonito e encerado, muito alto, tinha portas de ferro de enrolar, sendo um edifício com estilo art-deco." (26/7/2014)
Imagem cedida a Novo Milênio pelo autor, o professor Francisco Carballa

 

O local em abril de 2011, fotografado  pelo programa Street View (acesso em 15/11/2014)