|

Clique <aqui> ou na imagem acima para ampliá-la
Para ver em Google Maps, clique <aqui>
| Tipo: UNIDADE ESPACIAL URBANA |
| Área: 627.885,71 m² ou 0,63 km² |
| Descrição perimétrica: |
|
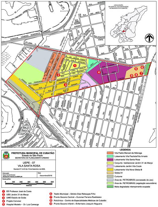
UEPE - 07 / Santa Rosa: o perímetro inicia no ponto n.º 01 de coordenadas UTM: E= 354.195,00m e N= 7.357.508,31m, na
intersecção da Avenida Jornalista Giusfredo Santini e o pipe rack (estrutura de sustentação de oleoduto), sobre a mencionada avenida, seguindo sobre esta via até seu prolongamento denominado Avenida Henry Borden, percorrendo todo sua extensão
até atingir a linha férrea no ponto n.º 02 de coordenadas UTM: E= 355.565,27m e N= 7.357.319,35m; defletindo para rumo sul até o ponto n.º 03 de coordenadas UTM: E= 355.518,30m e N= 7.357.165,81m (ponto de encontro entre a linha férrea e o
prolongamento imaginário do eixo da Avenida Martins Fontes); defletindo deste ponto na direção do eixo da Avenida Martins Fontes, percorrendo-a até alcançar o viaduto da Rodovia Padre José de Anchieta (SP-150), sobre a mencionada avenida.
Desta intersecção, deflete no sentido noroeste (NO) na direção azimute de 318º, mantendo-se sobre o eixo da Rodovia Padre José de Anchieta (SP-150), onde sofre deflexão ao atingir o ponto n.º 04 de coordenadas UTM: E= 353.810,56m e N=
7.357.083,88m, seguindo deste ponto, o rumo nordeste (NE) até o ponto inicial n.º 01. |
| População: 5.146 habitantes MASCULINA:
2.562 hab. FEMININA: 2.584 hab. (Censo 2010) |
| Densidade populacional: 8,195,76 hab/km² (Censo 2010) |
|
Dia comemorativo (Lei 1.970, de 17/9/1991): 5 de
agosto
Núcleo Jardim 31 de Março (Lei 1.970, de 17/9/1991):
20 de setembro
Núcleo Vila Amado (Lei 1.970, de 17/9/1991):
9 de maio
Núcleo Vila Nova Cubatão - Gleba B (Lei 1.970, de 17/9/1991):
31 de março
Núcleo Vila Padre Manoel da Nóbrega (Lei 1.970, de 17/9/1991):
27 de janeiro |
| Equipamentos públicos: |
|
* Unidade Básica de Saúde (UBS) Dr. Adriano Goulart (Jardim 31 de Março) - Rua Antonio Simões de Almeida, s/nº - 3372-6379 [LOCAL]
* Unidade Municipal de Ensino (UME) Estado de Goiás (pré) - Rua Sergipe, 270, Jardim 31 de Março - 3372-7678 [LOCAL]
* Escola Estadual José da Costa - Rua Almirante Barroso, s/nº - Jardim 31 de Março - 3361-3115 [LOCAL]
* Ateneu (creche conveniada) - Rua Rio de Janeiro, 210 - 3361-6216 [LOCAL]
* Pronto Socorro Municipal Guiomar Ferreira Roebbelen - Av. Nove de Abril, 2.800 - 3361-5769 [LOCAL]
* Hospital Municipal Dr. Luiz Camargo da Fonseca e Silva - Avenida Henry Borden, s/nº - 3500-7077 [LOCAL]
* Estação das Artes (Secretaria Municipal de Turismo) - Avenida Nove de Abril, 1.028 - 3361-4656 [LOCAL]
* Centro de Referência do Idoso (CRI)/Projeto Conviver - Avenida Dr. Fernando Costa, 181 - 3372-4836 [LOCAL] |
| Informações adicionais (históricas, geográficas, culturais): |
* |
| |
Proposta inicial NM de abairramento desta área |
|